
1.双梁吊钩门式起重机适用露天仓库、料场、铁路货站、港口码头等装卸搬运。还可以配以多种专用钩具进行多种特殊作业。
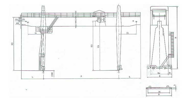
2.起重机有桥架、大车运行机构、小车、电器设备等组成。桥架采用箱型双梁焊接结构,大车运行机构采用分别驱动,全部机构均在操纵室操纵。
3.起重机导电形式分为电缆和滑线两种,用户可任选一种,图表中数据以滑线为准。
4.本系统起重机正常使用的环境应在-25度- 40度范围内,24小时内的平均温度不得超过 35度。其它安装使用地点的海拔高度不得超过2000米,超过1000米时应对电动机容量进行校核。
5.起重机5t、8t、10t、12.5t,所有跨度;起重机16/3.2t,跨度18m、22m、26m;起重量20/50t,跨度18m、22m的起重机下横梁结构为图所示。
